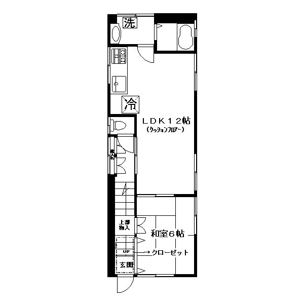
¥63,000 1K NishiHachioji HACHIOJI 58W19 NO Key$, NO Deposit, NO Agency Fee Hachioji, Tokyo ~10 min walk